您好,欢迎进入某某某某电动伸缩门有限公司官网!
MK体育- MK体育官网- MK体育APP下载

联系我们

邮箱:youweb@admin.com
电话:020-88888888
地址:广东省广州市番禺经济开发区 在线咨询

大华公园柏翠(售楼处)官方网站-大华公园柏翠销售中心(营销中心)-楼盘欢迎您-小区环境-户型-价格-地址-楼盘详情-周边配套-售楼处电话MK体育- MK体育官网- APP下载

发布日期:2026-03-03 07:24 浏览次数:

  MK,MK体育,MK体育官网,MK体育app,MK体育网址!为避免大客流影响服务质量、仅预约客户可进入销售现场,感谢您的理解和支持!

  而如今整条北中环线上的房价相当昂贵,整体均价都在约11万+。但这些置业地距离大华公园柏翠不过是一脚油门的事情。

  大华公园柏翠距离静安区只有约400米左右的直线距离,是整个宝山距离中心城区最近的新房。

  一方面,这是地段价值的体现,尤其是在康宁路-万荣路、南北高架、1号线等三条超级大动脉的加持下。

  另外一方面,在大宁在前不久出让的土地,其可售楼板价约8.6万/㎡,网上猜测这块宅地未来售价的声音很多,例如12万、14万甚至是16万。

  大华公园柏翠与大宁之间的关系,与宝山新江湾城与杨浦新江湾之间的关系很相似。

  在新房定价时,宝山新房均价约7万/㎡、杨浦新江湾约10万+/㎡,这无可厚非。

  但一旦步入二手,这两者之间的房价差距迅速拉近,因为在配套、交通、产业相近的情况下, 产品力才是决定一切的根本

  而大华公园柏翠的产品力,有着不输任何对手的底气!一旦步入二手,这就是整个北中环的王者,拥有极强的未来潜力。

  除了出众的地段、配套、价格优势外,大华公园柏翠享受的利好和潜力,同样惊人。

  这座园区对于北中环的意义,与张江对于浦东的意义是相同的,代表着更高阶、更高能级的产业规模和能级。

  在上海建设“科创中心”的大目标下,上海市大数据中心已带头落址市北高新。这里将会是上海数据资源最丰富、数据类企业最集中、数据应用场景最广泛的区域。

  另外一方面,宝山其实从去年南北转型开始,就展现出了完全不同以往的发展势头来。

  的南大智慧城、以东的吴淞创新城,在规划中都是科创产业的主阵地建设的两大核心承载区,建设速度肉眼可见。同时,今年宝山公示了《吴淞江-蕰藻浜沿线地区专项规划》

  ,将规划整体打造一条蓝绿交织、清新明亮、连湖串链、通江达海和水韵特色鲜明、创新功能集聚、滨水活力彰显的上海大都市江南水廊发展带,体现中华风范、江南风光、创新风尚。

  同时,项目又是整个北中环距离静安、大宁,以及上海主动脉南北高架更近的项目。

  可以预想到,未来以项目为中心,周边未来聚集的高薪产业、高知人口以及城市菁英不计其数。

  而大华公园柏翠遥遥领先的产品力,未来将吸引这些改善置业客户的不断追逐,直至将其顶上北境之王的价格和地位。

  小胖君认为,这可能会是北中环最卷的高品质项目之一。 我们从几个方面来解析一下:

  在叠加项目距离静安直线米的地段,这几乎就是一个位于城市中央、生长在森林里的低密大居。

  同时,大华公园城市一二三期均已交付入住,整个大社区的居住环境、氛围已经非常浓郁。大华公园柏翠这个王冠之上的作品一旦交付,即刻就能享受生活。

  项目在归家动线上特别打造了“三进式”归家礼序,并且每一层归家礼序的打造,都是按照千万级豪宅才有的规格。

  修饰。整体迎宾空间耗材约1800片大理石,这样的大门规格、石材用料以及用心程度,无不体现出大华公园柏翠对标豪宅的决心。

  的一体化设计打造而成,由此开始拉开了低密森氧居住生活的大幕,这是市面上其他新房所没有的高规格。

  用料上,庭院两侧设计师选用大理石与镂空铝板虚实结合,利用2层柏翠造型铝线条错拼而成,更显精致;

  归家大堂能给业主更尊贵归家体验的同时,也能作为柏翠业主专属的城市会客厅。

  ,这是顶级豪宅才有的用料和细节。大华公园柏翠售楼处电线✔✔大堂接待台选用产自

  对于很多新房而言,公区的用料可能就代表一切,因为这个只要“肯花钱”,很容易就能达成。

  首先, 大华公园柏翠利用12级叠水、2座树池、9步水上汀步,运用六重造景的手法打造近500平的中央水景!

  用一颗柏翠树型的构筑物形成独具艺术气质的“大树咖啡厅”,不仅拔高了社区的整体审美艺术和品味,也可供业主闲时聊天赏景、遛宠遛娃。

  不难看出,大华公园柏翠不仅卷用料,更在审美艺术、生活方式上接轨国际前沿,拔升了高端住宅的品味和调性, 整体的公区用料更是媲美高端豪宅!

  第一,大社区,前期已经交付的一二三期业主已经让整个片区拥有浓厚的生活气息和烟火气。

  第二,大华公园柏翠不仅拥有社群活动, 关键它将 成为当下少有的把社群氛围做成文化的项目。

  现场不仅有巨型圣诞树,大宁久光同款小食屋,还飘下了2024年上海的“第一场雪”。现场的圣诞氛围满满,人气火热。

  另外一方面,各业主可以在线上社群中相识,在线下聚会中逐渐亲密,成为亲切而信任的朋友。无论你是e人还是i人,都能在大华公园柏翠找到志同道合的伙伴,收获舒心的社群生活。

  总结一下,大华公园柏翠的产品力和软性服务,印证了开头的那句话,南北高架两侧打造的新房,均是各大开发商最好的产品。

  一方面, 小高层在近期的上海市场中非常稀缺,尤其是在中环线上的位置上,小高层住宅凤毛麟角。

  但另外一方面,小高层天然的高得房率、私密性和居住舒适度也保证了这个产品的受欢迎程度。

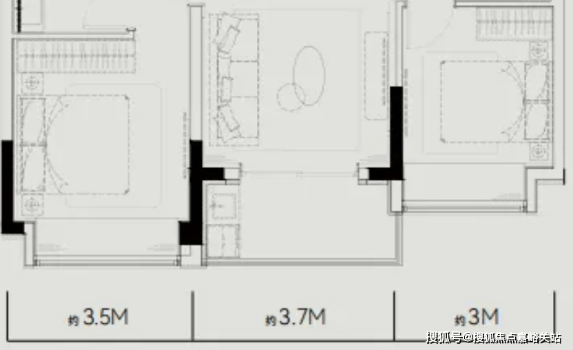
  其次,产品上:项目建面约101-124㎡房源一梯两户、建面约142㎡两梯两户

  而这意味着,大部分的房源均是无连廊的设计,将带来更高的采光通透度、更好的通风以及更高的得房率。再加上项目飞机户型的设计,室内几乎0空间浪费,即使是小户型也有超高的尺度感。

  这个项目凭借着出色的户型,获得了不少高净值人群的青睐,但他约104㎡的户型南向面宽只有10.2米,比大华公园柏翠约101㎡的户型还小了约1.3米。

  大华公园柏翠售楼处电线✔✔超大的U型厨房十分宽绰,让切配煮更加合理从容。

  大横厅也可以灵活运用在各种生活场景,例如作为妈妈的瑜伽室、孩子的游乐天地等,都是很好的选择。

  平台声明:该文观点仅代表作者本人,搜狐号系信息发布平台,搜狐仅提供信息存储空间服务。

联系方式

全国服务热线

020-88888888

手 机:13899999999

地 址:广东省广州市番禺经济开发区

扫一扫,加微信

Copyright © 2018-2025 MK体育- MK体育官网- MK体育APP下载电动伸缩门有限公司 版权所有 非商用版本 备案号: